
NEW HANOVER COUNTY — On the planning board docket this week in New Hanover County are four rezonings, three of which will increase the housing density allowance for future developments.
Located across the county, the rezonings would make way for 270 housing units and mixed-use capability for one commercial property.
According to a the New Hanover County Planning Board will hold public hearings for each proposal before making their recommendation to the county commissioners.
Below are the developments to be reviewed this week. Each one had yet to receive a recommendation by planning staff as of Nov. 14; each application is scheduled for review by county commissioners on Jan. 9.
6634 Carolina Beach Road

Potentially coming to a vacant lot along Carolina Beach Road are 78 multi-family units on 4.65 acres of land, currently zoned for single family homes.
Instead, Cindee Wolf with Design Solutions, on behalf of owners Giovanni Ippolito and Tanya Vlacancich, are proposing the property be rezoned to accommodate moderate density multi-family dwellings.
Property records show Ippolita, a New York resident, purchased the property in 2021 for $450,000.
The 78 units would be housed across an L-shaped three-story building — excluding the parking garage ground floor — and include recreational amenities. The site plan shows a pool centered in the building and pickleball courts in the northwest quadrant of the property.
Accessible by Carolina Beach Road, the apartment building will stand 50 feet high and be separated from nearby single-family homes. Other neighbors along the highway include multiple churches, such as the Myrtle Grove First Born Church and the Immaculate Conception Catholic Church.
The original planning board review date for this application was Oct. 6; however, the applicant asked for the item to be moved to December.
7011 Ruth Avenue

Two more apartment buildings are proposed near the conjunction of Military Cutoff Road and Market Street.
On behalf of property owners Cornelius E Nixon Revocable Trust, Cornelius
Nixon Trust, and Nixon Associates, LLC, Paramount Engineering has applied to rezone four parcels of land totalling 10 acres from a mix of residential business and moderate density residential to low-density residential. A conditional zoning district, if granted, will allow for high-density apartments.
Paramounte is responsible for many Wilmington development designs, including the recently withdrawn Carolinian Inn proposal. The engineers’ concept for this development include two 72-unit buildings, each with four stories.
The property is vacant and accessible via Ruth Avenue and Market Street. A large strip of open space will separate the property from Military Cutoff Extension.
The development’s residential offerings would be located near a host of businesses and restaurants along Market Street and Ogden Park.
147 Brentwood Drive

Nearly 50 single-family units could be added along Brentwood Drive in the growing northern division of the county.
The 7.63 vacant acres are owned by Wilmington Development Group. Samuel Franck with Ward and Smith law firm, has applied for a rezoning from the current moderate density residential to a lower density residential zoning, albeit with a conditional zoning to allow for the proposed three triplexes and 10 quadruplexes.
The homes would be situated around a cul-de-sac, which would need to be constructed and paved. The road would connect to Brentwood Drive, which leads to Castle Hayne Road. An emergency access road would also be constructed on the opposite side from the access point. The cul-de-sac will be flanked by single-family dwellings.
The homes are strategically arranged around the property’s wetlands. Two stormwater ponds are present to accumulate rainwater.
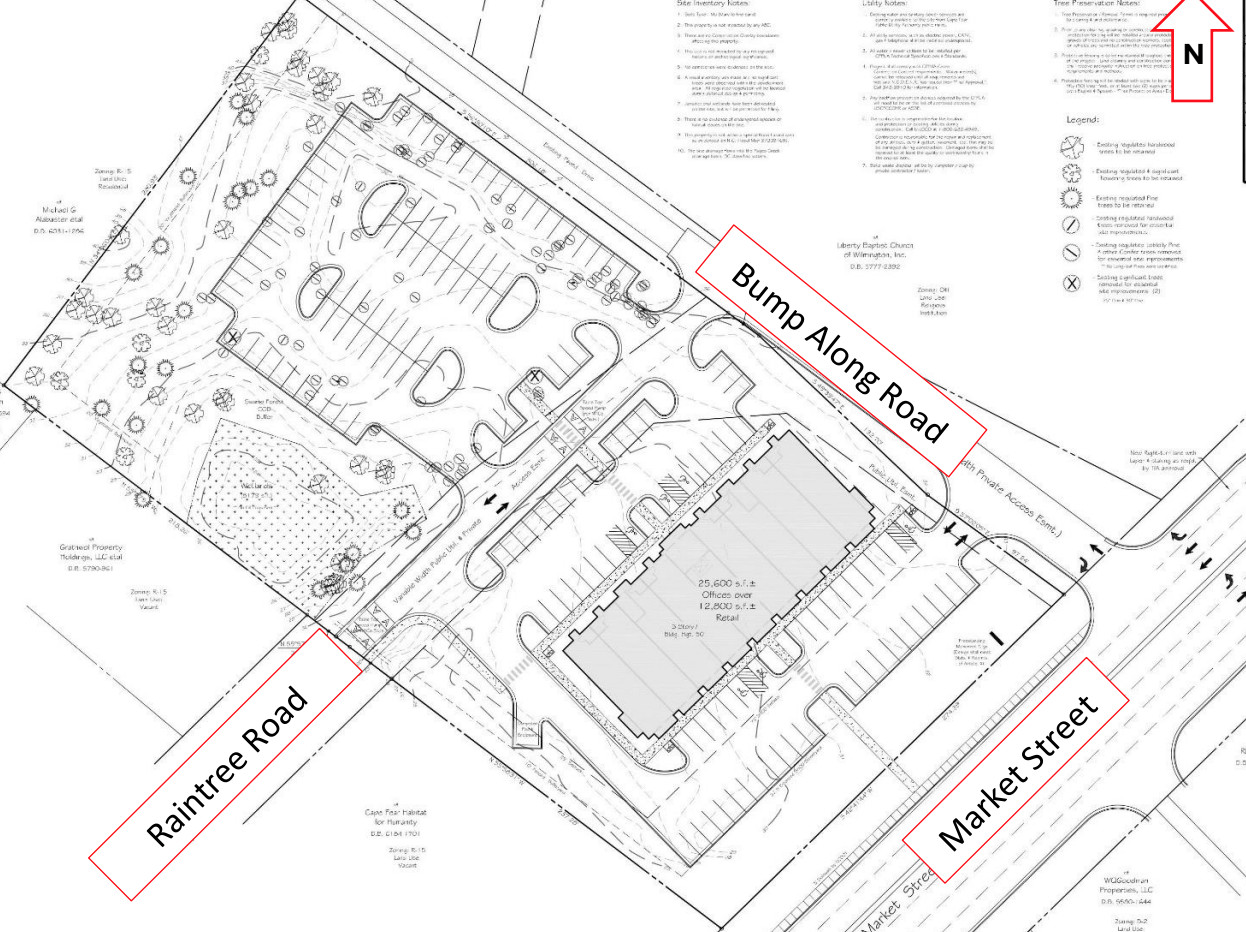
7887 Market Street

Design Solutions’s Cindee Wolf will represent another rezoning application on Thursday, this one to make modifications to an approved project.
Bailey and Fuller Properties LLC wishes to remove the office and institutional zoning and operate under a sole zoning of a conditional regional business for a 3.44 acre property along Market Street between Bump Along and Raintree roads in Porters Neck. A two-story building already was approved.
The rezoning will allow for a third story to be added, improval of rear lots for parking and a special use permit for a mixed-use development, which would incorporate residential and office and institutional use. The applicant also wishes to provide a public easement between Raintree Road and Bump Along Road to preserve the area’s interconnectivity.
Nearby residential offerings include single family dwellings as well as Amberleigh Apartments across the highway.
Reach journalist Brenna Flanagan at brenna@localdailymedia.com
Want to read more from PCD? Subscribe now and then sign up for our newsletter, Wilmington Wire, and get the headlines delivered to your inbox every morning.

