
NEW HANOVER COUNTY –– One national real estate company has keyed in on a vacant tract of land on Carolina Beach Road and submitted a proposal to build hundreds of apartment units on the land.
The application was first floated in May, involving 20 acres a mile south of the Carolina Beach Road-S. College Road junction. Currently owned by a limited liability company affiliated with a local optometrist, the undeveloped land borders the Beau Rivage Plantation neighborhood, and has landed in the crosshairs of Thompson Thrift Development.
The Indianapolis-based company has a residential arm, Watermark, that has built more than 14,000 units across 20 states. Thompson Thrift recently sold a Phoenix shopping center for $18.25 million and a mixed-use development in the Indianapolis suburbs for an undisclosed price.
At the end of June, the current landowner authorized Thompson Thrift and its local attorney Sam Franck of Ward and Smith to pursue a rezoning request on the land. Currently the area is zoned for purposes like a big-box store or an office complex. Franck submitted materials to the county related to the project, but according to planning director Rebekah Roth, the applicant decided not to proceed with the proposal prior to the deadline for submittals for the November planning board meeting.
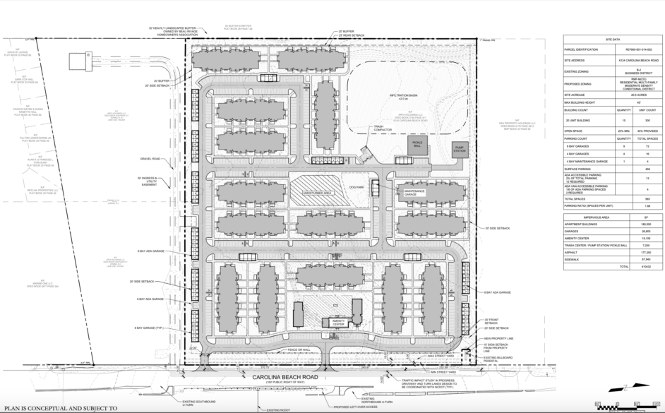
The rezoning request would permit the development of 300 apartment units. The site plan shows 15 buildings, all of which would be capped at two-story heights.
The application vouches that the project would contribute to much-needed housing stock in the county, while also touting the traffic impacts of a multi-family development of this sort would be far less burdensome than would be the case if the project was developed by-right as a shopping complex.
“There are already a variety of commercial uses in the vicinity of the Property, but a lack of residential multi-family,” according to the application.
Site plans include 456 surface parking spaces, and 565 total spaces when accounting for the handful of eight- and four-bay garages. Plans also allude to a pickleball court right between the infiltration basin, trash compactor and pump station.
On the other side of Carolina Beach Road, this property is directly across from another chunk of vacant land: a 42-acre parcel owned by New Hanover County. The county-owned land has been targeted for decades as the site of a new park. This year, budget money was dedicated to bringing Hanover Pines Nature Park to life.
READ MORE: 30 years in the making, a park is getting built near Monkey Junction
Correction: A previous version of this article incorrectly stated that this application had been scheduled for a November hearing. The applicant decided not to proceed with the proposal in advance of the submission deadline.
Send tips and comments to preston@localdailymedia.com

