
LELAND — Leland is gaining more than 1,500 new residents each year and developers are building to match.
There are thousands of new housing units and a litany of commercial developments working their way through the town’s planning process right now.
These projects have not come to fruition yet, so this is just a preview of what they could include.
Savannah Branch Phase One and adjoining shops

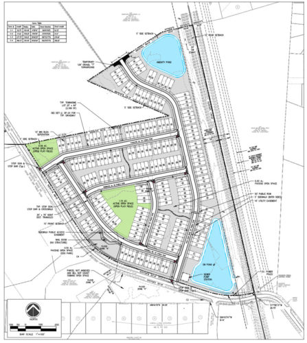
This project proposes building 113 single-family homes and has a plat working its way through the town’s preliminary review. The site is a 79.32-acre parcel located between U.S. Highway 17 and Lanvale Road Northeast, with access from 17.
It will house 1.42 units per-acre and a combined common area of 46.2 acres through a combination of passive and active amenities and ponds. Most of the homes will be flanked by contiguous pond access in the backyards and the developer has included potential areas for future development to the north of the site.
All the development’s utilities will be underground and it plans to connect to H2GO’ss water and sewer network.

Savanna Branch also has an adjoining commercial project to the east working through the planning department. The Shoppes at Savannah Branch was built on 16.79 acres off Highway 17 with 48,387 square feet intended for a grocery store in a 122,593-square-foot shopping center.
The development would include four smaller anchor properties and two small multi-shop areas that make up the main shopping center area with three outlot buildings totaling 19,000 additional square feet of retail space. The center will have 613 parking spaces.
The Townes at Seabrook

Seabrooke Development proposes 212 townhomes on a 32.2-acre tract off Buckeye Drive Northeast, across from Sullivan Lane and directly across from the existing Seabrooke development built out with single-family homes. The preliminary site plan notes the homes will be built up to a 40-foot maximum height
The plan includes central and northern grassy play areas totaling 1.76 acres in the midst of the development, as well as a dedicated dog park, crosswalks and sidewalks. An amenity pond will be on the north end, with 10 units built adjacent to it and a separate stormwater retention pond installed at the southern end of the site.
The project includes construction of more than 4,500 linear feet of roads to serve residents. Parking will be provided in driveways to each home and all utilities will be underground.
Pelican Pointe

This is a multi-family complex project located on Rabon Way and River Road, with a proposed 108 units split between 21 buildings on a 13.13-acre parcel.
Each unit will be connected to H2GO’s network and all utilities will be buried. The developer, L.M. Sandler and Sons plans to provide 271 parking spaces, one more than legally required by the town formula. The development will have an “amenities building” with no specifics listed on the preliminary plat.
Westgate Commercial Retail and Gym

Located on West Gate, across the street from Burger King and next to Leland Storage, this proposed development would build a 15,000-square-foot commercial building to house a new gym, with specific amenities like a locker room, and a 15,800-square-foot building that shares the same parking lot
The site is a 3.03-acre parcel of vacant land wedged between rapid development on all sides. The project will provide 125 parking spaces and add a significant amount of impervious surface to the land. Previously , the parcel had 8,790 square feet of impervious surface, but between combined buildings, sidewalks, dumpsters, asphalt and curbs, Southeastern Design and Construction is proposing to bring the total to 75,178 square feet.
The site will add 18 large canopy trees to the parking lot of at least three species.
All utilities to the site will be underground.
Tips or comments? Email info@localdailymedia.com.
Want to read more from PCD? Subscribe now and then sign up for our morning newsletter, Wilmington Wire, and get the headlines delivered to your inbox every morning.

